- まちかどモデルハウス
3階建STAGE. 岡垣町東山田
MAP
物件情報
| 所在地 | 遠賀郡岡垣町東山田1丁目8-24 | ||
|---|---|---|---|
| 築年数 | 2024年10月 | 建築構造 | 木造 |
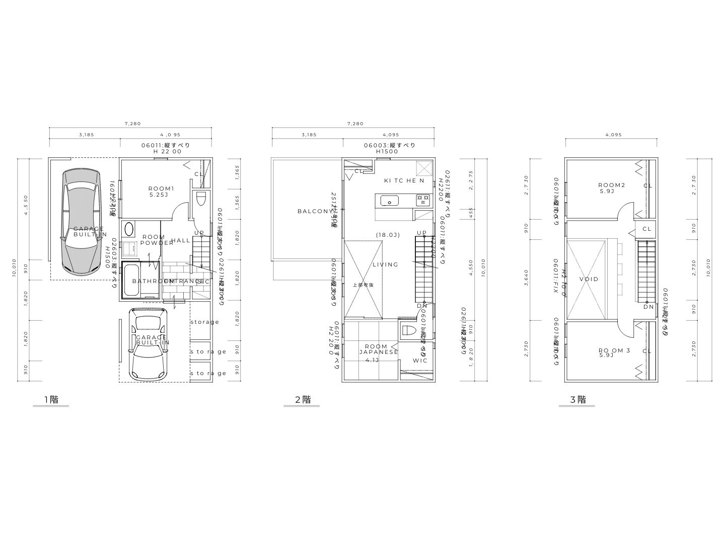
| 間取り | 3LDK | 間取り内訳 | LDK18帖、洋室5.25帖、洋室5.9帖、洋室5.9帖、和室4.1帖 |
| 建物面積 | 140.36㎡(約42.45坪) | 駐車場 | 駐車場あり |
| 備考 | 【ポイント】 ■家族が集うLDK 3階へ繋がる吹抜けが開放感をもたらすLDK。 家族が自然と集う、イエの中心です。 ■ビルトインガレージ 愛車の為の特別な空間。 大切な車を雨風から守るだけでなく、防犯面でも安心。 車の乗り降りもスムーズで、雨の日や荷物の多い日も快適そのもの。 ■ワークスペース 2人並んで使えるワークスペース。 自然光が心地よく差し込み、作業に集中できる環境です。 ※当社は完全自由設計の注文住宅専門業者です。 建築地等ございましたらプラン作成いたしますのでご相談くださいませ。 |





